171 513 руб.
Варианты цен
171 513 руб.
162 102 руб.
Варианты цен
162 102 руб.
231 578 руб.
Варианты цен
231 578 руб.
107 441 руб.
Варианты цен
107 441 руб.
120 062 руб.
Варианты цен
120 062 руб.
120 062 руб.
Варианты цен
120 062 руб.
126 411 руб.
Варианты цен
126 411 руб.
146 693 руб.
Варианты цен
146 693 руб.
157 985 руб.
Варианты цен
157 985 руб.
157 985 руб.
Варианты цен
157 985 руб.
167 010 руб.
Варианты цен
167 010 руб.
По запросу
Варианты цен
По запросу
145 047 руб.
Варианты цен
145 047 руб.
162 102 руб.
Варианты цен
162 102 руб.
180 075 руб.
Варианты цен
180 075 руб.
198 047 руб.
Варианты цен
198 047 руб.
213 302 руб.
Варианты цен
213 302 руб.
213 302 руб.
Варианты цен
213 302 руб.
223 923 руб.
Варианты цен
223 923 руб.
По запросу
Варианты цен
По запросу
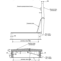
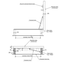
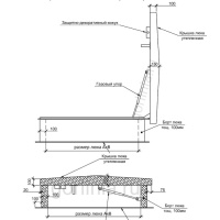
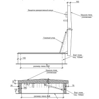
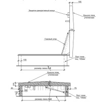
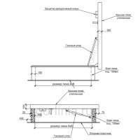
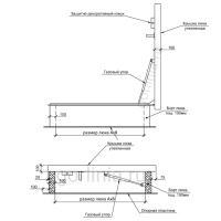
Люки семейства ЛАЗ с нижним открыванием предназначены для выхода на кровлю с целью эвакуационных или ревизионных мероприятий. Могут устанавливаться на горловины подвальных помещений для вентиляции.
Металлокаркас изготовлен из листовой холоднокатаной стали 2 мм. В пустотах между стенками борта и крышки проложен минеральный утеплитель 100 мм для теплоизоляции опорно-укрывного элемента.
Герметичность - два слоя резинового уплотнения на опорной поверхности, дверца с загнутыми вниз краями доступна в двух исполнениях:
Опорная крепежная полоса приваривается к борту стежковой сваркой во избежания коробления листовой стали при локальном нагреве.
Корпус колеруется порошковой эмалью RAL 0121 в два прохода с подготовкой поверхности цинкосодержащим грунтом ZIN 6305.
Конструкция люков на крышу ЛАЗ
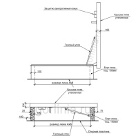
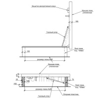
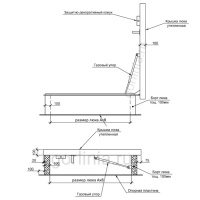
Металлокаркас изготовлен из листовой холоднокатаной стали 2 мм. В пустотах между стенками борта и крышки проложен минеральный утеплитель 100 мм для теплоизоляции опорно-укрывного элемента.Герметичность - два слоя резинового уплотнения на опорной поверхности, дверца с загнутыми вниз краями доступна в двух исполнениях:
- плоская,
- двухскатная.
Опорная крепежная полоса приваривается к борту стежковой сваркой во избежания коробления листовой стали при локальном нагреве.
Корпус колеруется порошковой эмалью RAL 0121 в два прохода с подготовкой поверхности цинкосодержащим грунтом ZIN 6305.
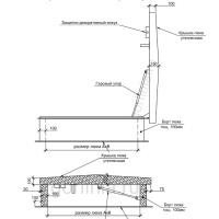
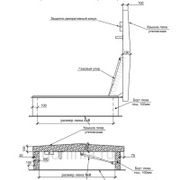
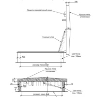
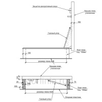
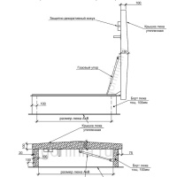
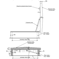
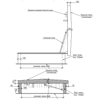
Этапы установки люка на кровле
- Установить на существующий проем в перекрытии плоской крыши,
- просверлить отверстия для анкеровки в плиту
- закрепить коробку анкерами по контуру
- выполнить герметизацию примыкания борта мастикой, битумом с перекрытием крепежной пластины С,
- произвести устройство кровельного покрытия на высоту не менее 100 мм от основания короба.
